Search

Type your text, and hit enter to search:
Close This site uses cookies. If you continue to use the site you agree to this. For more details please see our cookies policy.

Statements and Plans

On this page you can access the current statements and plans for the Link Community Hub Project.  

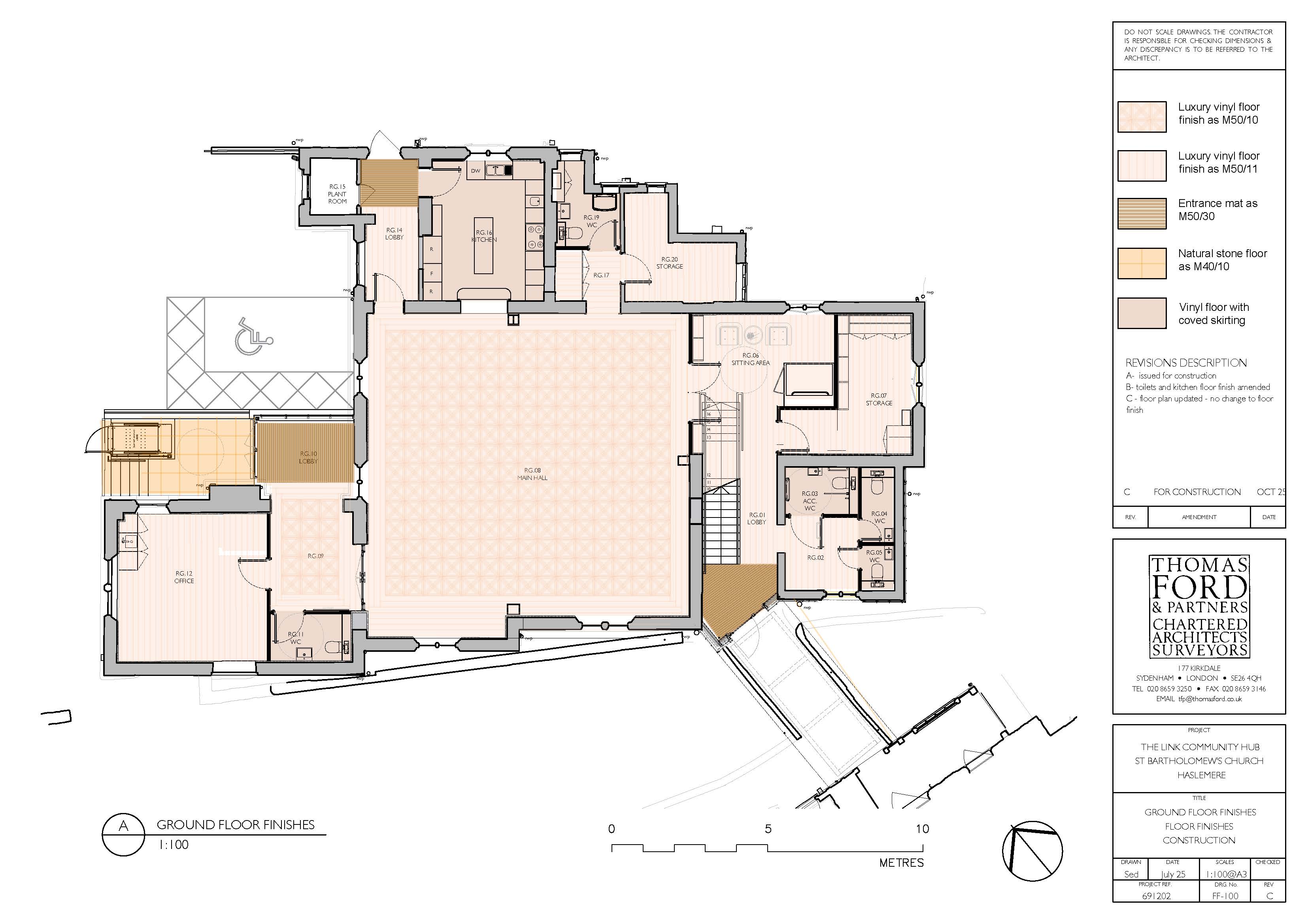
You can download the key document here from these links below:

 

The Ground Floor Plan

Link November 2024 Drawings 2
 

The First Floor Plan

Link November 2024 Drawings 3

Planning your Visit